こんにちは。
インテリアデザイナーの小林由梨奈です。
宿泊施設のインテリアデザインのオファーをいただき、先日プレゼンをさせていただきました。
法人のお客様で、私の過去の施工事例やプランに込めた思いを読んで、オファーを下さったとのこと。
1年半くらいダンスしかしてなくて笑
ブログやSNSを更新できていなかったのですが、ご縁をいただけてとても嬉しいです^^
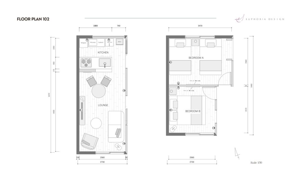
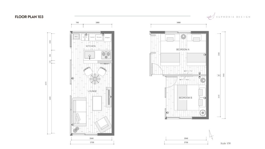
海の近くの新築の集合住宅の2つのお部屋で、内装材はすでに決定済。
Airbnbなどで集客し、民泊として利用されます。
家族でご利用される宿泊客を想定されていて、最大4人が滞在できることがプランの条件でした。
それ以外はすべてお任せいただいたので、楽しく自由にプランニングさせていただきました💫
メゾネットのお部屋2つで、間取りは左右対称で同じ内容。


片方は床が明るい色のフローリングで、アクセントクロスが明るい水色寄りのグレイッシュブルー。もう片方は床がダークブラウンのフローロングで、アクセントクロスが温かみのあるダークネイビー。
なので、それぞれの色と、現調のときに感じた空間の印象と土地のイメージや波動から着想を得て、異なる2つのインテリアプランをデザインさせていただきました。
水色と白の洞窟

明るい水色のアクセントクロスの方のコンセプトは、「水色と白の洞窟」。
地中海リゾートのイメージでプランニングしました。

地中海の中でも、とくにサントリーニのCave Houseのイメージです。
サントリーニで滞在したヴィラの印象と
シチリアのタオルミナに1人旅したときの「アジア人が自分しかいない」開放感を掛け合わせて、
現実的な家具プランに落とし込みました。

ちょっと暖かな色も入れたくて、同じ地中海のあたりから、
南仏の窓の外の景色を描いたアンリ・マティスの油絵プリントを寝室に飾りました。

日本にはないビジュアルの木々と、オレンジの暖色がアクセントに効いて素敵です。
私はゴッホが好きで、プロヴァンスの空気にとても親しみを感じています。

なのであたたかみをプラスするのに、南仏の空気をプラスしようと思いました。
窓装飾は、素材感のあるベージュブラウン系のシアーカーテンに、
アイボリーホワイト系のドレープカーテンを合わせてリゾートの風を感じる演出に。

アンティークゴールドのレールとシンプルなタッセルで、すっきりとまとめました。
こちらのプラン、お客様にとても喜んでいただき、ご採用いただきました😊
これから、ご納品&営業オープンに向けて丁寧に空間をつくっていきます。
明日はもう1つの方のプランもご紹介させていただきます✨
おやすみなさい。
インテリアデザイン&コーディネーションのご依頼はこちらからお問い合わせくださいませ。
2つのランキングに参加しています。
クリックで応援いただけたら嬉しいです☆

















